text.skipToContent text.skipToNavigation
Gestione del progetto

In qualità di fornitore di una gamma completa, vi offriamo da un'unica fonte tutto ciò che è utile e utile per le cucine professionali.

Forniamo inoltre consulenza e assistenza ai nostri partner specializzati nella vendita al dettaglio, agli architetti e ai professionisti della pianificazione.

Su richiesta, possiamo supportarvi in tutte le fasi della gestione del progetto:

  • Analisi dei bisogni
  • Determinazione della funzione
  • Sviluppo del concetto
  • Pianificazione del progetto
  • Sistema di quotazione
  • Pianificazione dell'installazione
  • Supporto per le specifiche del servizio

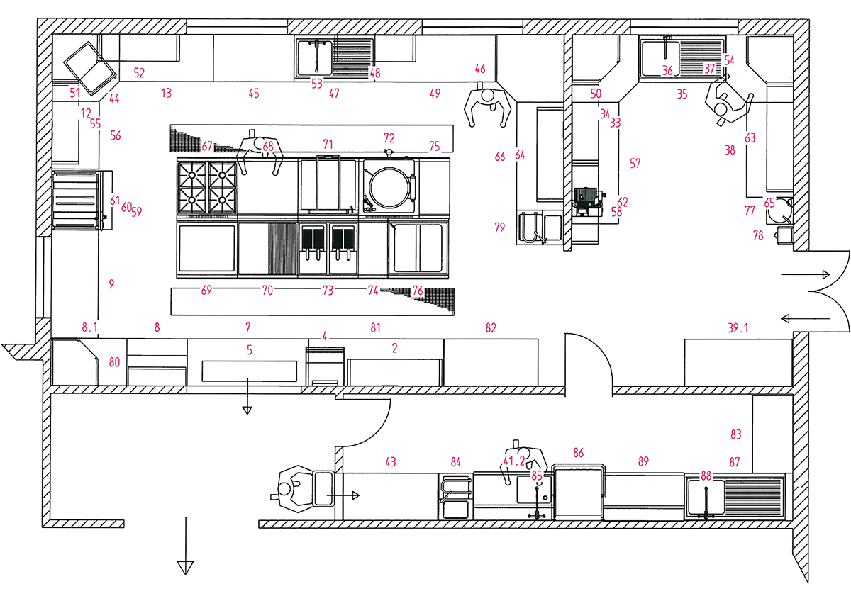
2D | Download DXF 2025

Per una progettazione comoda e semplice, vi forniamo i dati dxf dei nostri prodotti a catalogo da scaricare, che possono essere facilmente importati in qualsiasi programma CAD standard (compreso AUTO-CAD).

Il database dxf è disponibile qui. 


DXF | Serie 700 FX


3D | Download IFC 2025

I prodotti del nostro catalogo in 3D - Scaricate i dati 3D in formato IFC per una progettazione comoda e semplice.

I dati IFC sono disponibili qui.


Anche il nostro reparto progetti è a vostra disposizione con un team competente sul campo.

Vi offriamo assistenza e supporto in ogni fase.

Sfidateci!

Il vostro progetto Bartscher

State progettando di allestire una nuova cucina per la ristorazione o state pensando di adattare l'area di cottura alle vostre esigenze?

Saremo lieti di supportarvi nella realizzazione delle vostre idee, sia nell'analisi dei requisiti e nella determinazione delle funzioni, sia nella creazione di concetti e nella pianificazione del progetto, sia nel processo di quotazione o nella successiva pianificazione dell'installazione.